Hi There! Is this Your First Time?
Did you know if you Register you have access to free search tools including the ability to save listings and property searches? Did you know that you can bypass the search altogether and have listings sent directly to your email address? Check out our how-to page for more info.
- Price$219,000
- Beds3
- Baths1
- Sq. Ft.1,534
- Acres0.30
- Built1953
7228 Daisy Ave, Louisville
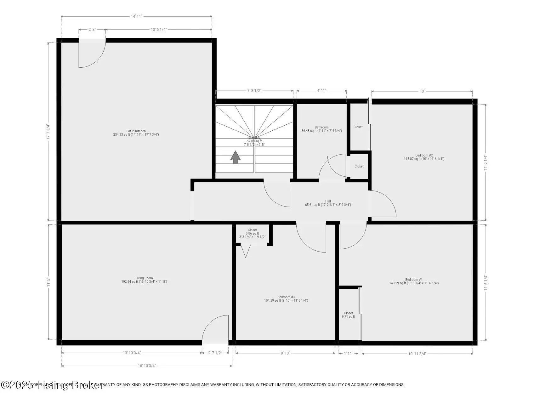
Welcome to 7228 Daisy Ave — a well-built 3-bedroom, 1-bath ranch. This home has been lovingly maintained and offers a solid foundation for your updates and personal touches. Featuring 1,111 sq ft on the main level plus 632 sq ft in the basement (423 finished), there's plenty of space to grow. The main level includes a comfortable living room, an eat-in kitchen, and three nicely sized bedrooms. Downstairs, the partially finished basement adds a family room, workshop area, and great storage. Out back is where this property truly shines — a large, fenced yard with multiple storage sheds, a huge detached garage with a workshop, and an extended driveway offering ample parking for vehicles, boats, or trailers. The covered rear porch with ramp access is perfect for relaxing or entertaining. Main three car garage also has electric, heating and cooling units. Located just minutes from Pleasure Ridge Park High School and several nearby public and private elementary schools, this home offers convenience, space, and endless potential. Don't miss your chance to make this one your own!
Essential Information
- MLS® #1701424
- Price$219,000
- Bedrooms3
- Bathrooms1.00
- Full Baths1
- Square Footage1,534
- Acres0.30
- Year Built1953
- TypeResidential
- Sub-TypeSingle Family Residence
- StatusActive
Amenities
- UtilitiesElectricity Connected, Fuel:Natural
- ParkingDetached, Driveway
- # of Garages3
Exterior
- Lot DescriptionCleared, Level
- RoofShingle
- ConstructionVinyl Siding, Wood Frame
- FoundationCrawl Space, Poured Concrete
Listing Details
- Listing OfficeExp Realty Llc
Community Information
- Address7228 Daisy Ave
- Area04-Pleasure Rdg/Valley Station/Shively
- SubdivisionGREENWOOD VILLA
- CityLouisville
- CountyJefferson
- StateKY
- Zip Code40258
Interior
- HeatingForced Air, Natural Gas
- CoolingCentral Air
- # of Stories1
School Information
- DistrictJefferson

The data relating to real estate for sale on this web site comes in part from the Internet Data Exchange Program of Metro Search Multiple Listing Service. Real estate listings held by IDX Brokerage firms other than RE/Max Properties East are marked with the IDX logo or the IDX thumbnail logo and detailed information about them includes the name of the listing IDX Brokers. Information Deemed Reliable but Not Guaranteed © 2025 Metro Search Multiple Listing Service. All rights reserved.




































































