Hi There! Is this Your First Time?
Did you know if you Register you have access to free search tools including the ability to save listings and property searches? Did you know that you can bypass the search altogether and have listings sent directly to your email address? Check out our how-to page for more info.
- Price$449,000
- Beds4
- Baths3
- Sq. Ft.3,410
- Acres0.33
- Built1972
7006 Fox Harbor Rd, Prospect
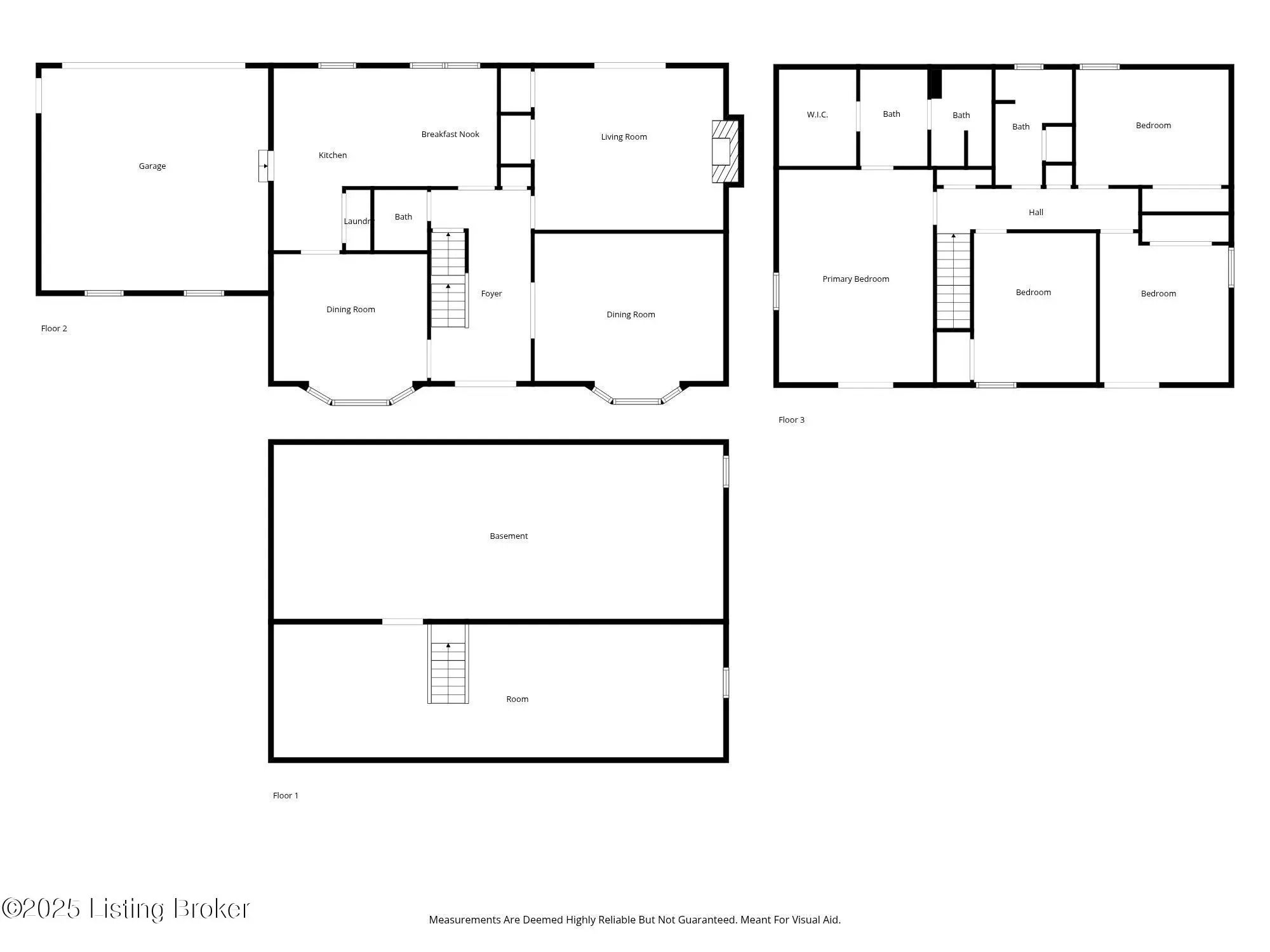
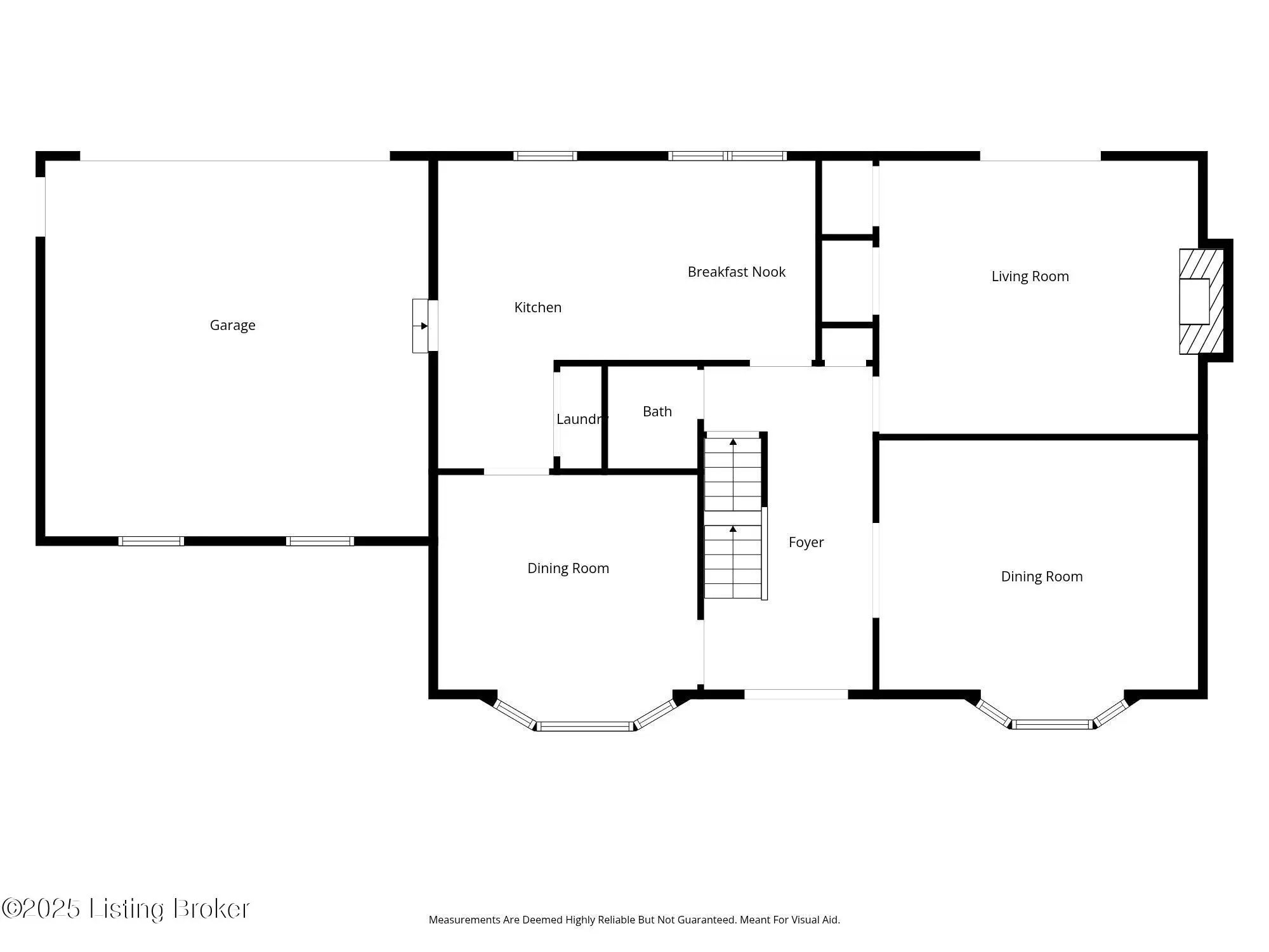
Welcome to 7006 Fox Harbor Rd. This spacious home is on market for the first time since 1988 and is ready for your personal touch. The first floor boasts ample space for entertaining with its large kitchen, dining room, and den. Not to mention the patio, accessible from either the breakfast area or the den. Upstairs you'll find a large primary bedroom with private bath and walk-in closet, as well as balcony access. The three additional bedrooms are all nicely sized with large closets. The basement has a huge unfinished space that's full of potential, plus approximately 680 square feet of finished space. These sellers are highly motivated and ready to make a deal. Schedule your tour today!
Essential Information
- MLS® #1702770
- Price$449,000
- Bedrooms4
- Bathrooms3.00
- Full Baths2
- Half Baths1
- Square Footage3,410
- Acres0.33
- Year Built1972
- TypeResidential
- Sub-TypeSingle Family Residence
- StatusActive
Amenities
- UtilitiesElectricity Connected, Fuel:Natural
- ParkingOff Street, Attached, Driveway
- # of Garages2
Exterior
- Exterior FeaturesBalcony
- Lot DescriptionCleared, Level
- RoofShingle
- ConstructionWood Frame, Brick Veneer
Listing Details
- Listing OfficeRe/max Properties East
Community Information
- Address7006 Fox Harbor Rd
- Area09-Anchrg/Glnvw/Lyndn/Prospct
- SubdivisionFOX HARBOR
- CityProspect
- CountyJefferson
- StateKY
- Zip Code40059
Interior
- HeatingForced Air, Natural Gas
- CoolingCentral Air
- FireplaceYes
- # of Fireplaces1
- # of Stories2
School Information
- DistrictJefferson

The data relating to real estate for sale on this web site comes in part from the Internet Data Exchange Program of Metro Search Multiple Listing Service. Real estate listings held by IDX Brokerage firms other than RE/Max Properties East are marked with the IDX logo or the IDX thumbnail logo and detailed information about them includes the name of the listing IDX Brokers. Information Deemed Reliable but Not Guaranteed © 2025 Metro Search Multiple Listing Service. All rights reserved.










































































