Hi There! Is this Your First Time?
Did you know if you Register you have access to free search tools including the ability to save listings and property searches? Did you know that you can bypass the search altogether and have listings sent directly to your email address? Check out our how-to page for more info.
- Price$565,000
- Beds4
- Baths3
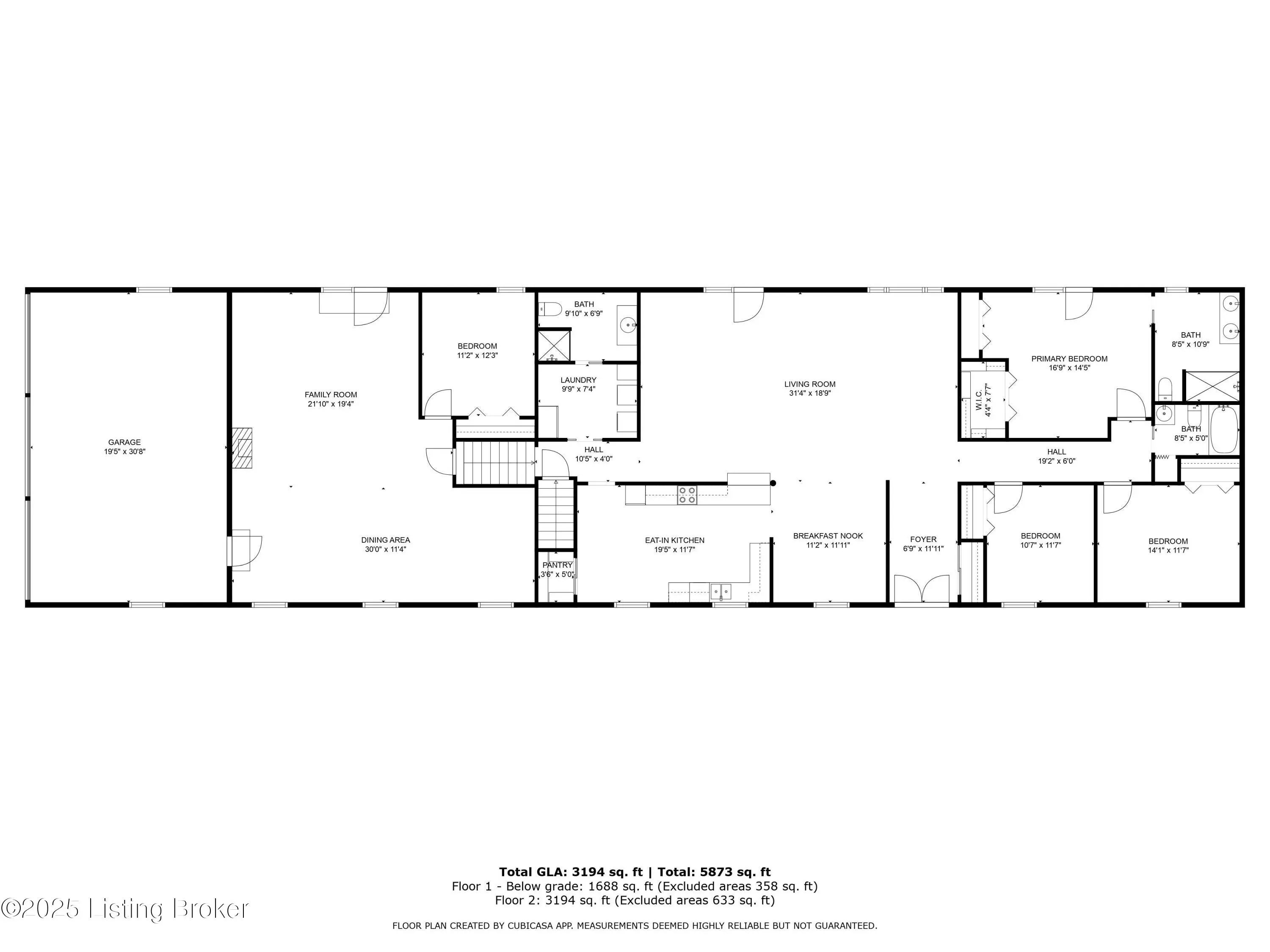
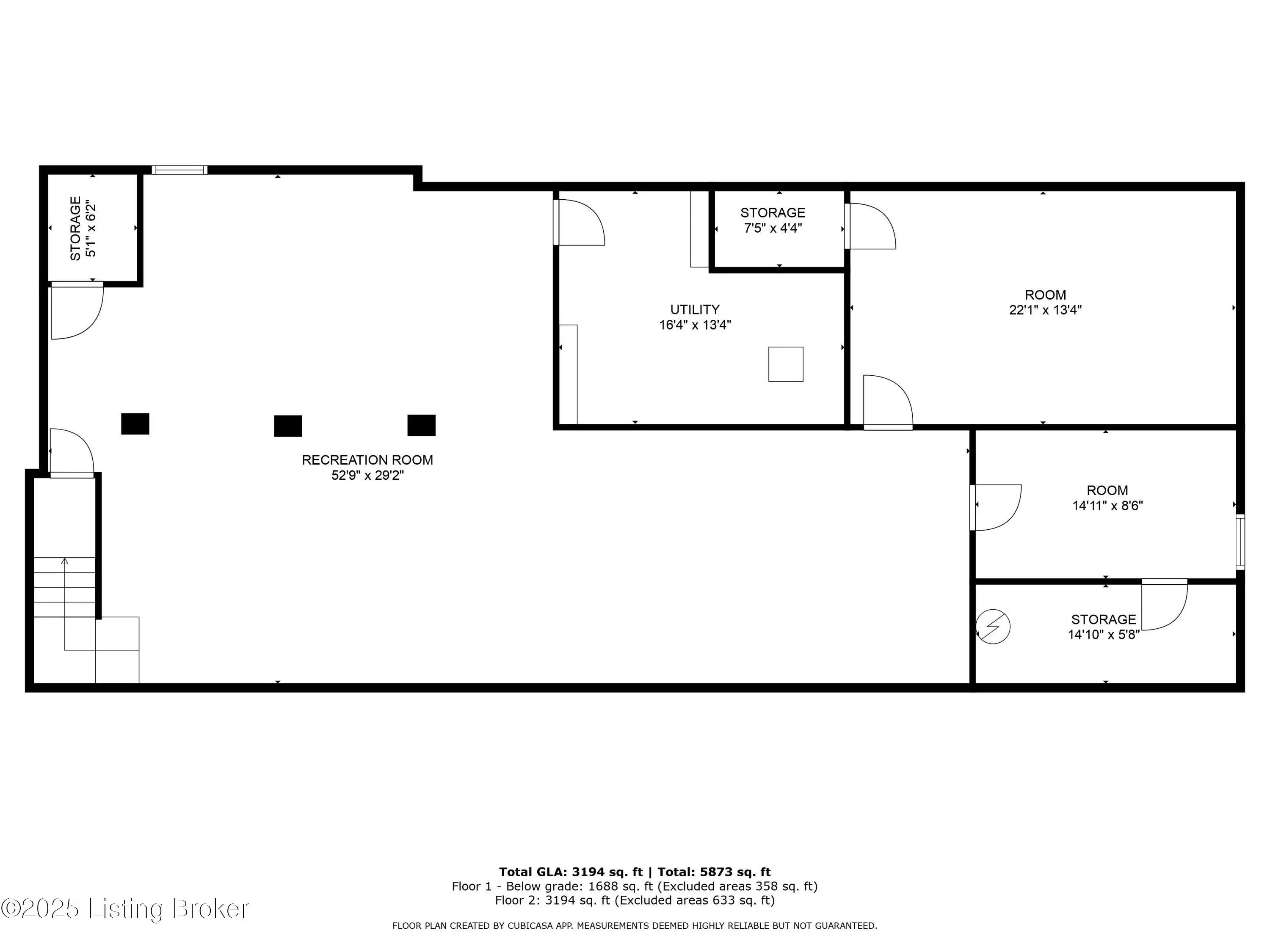
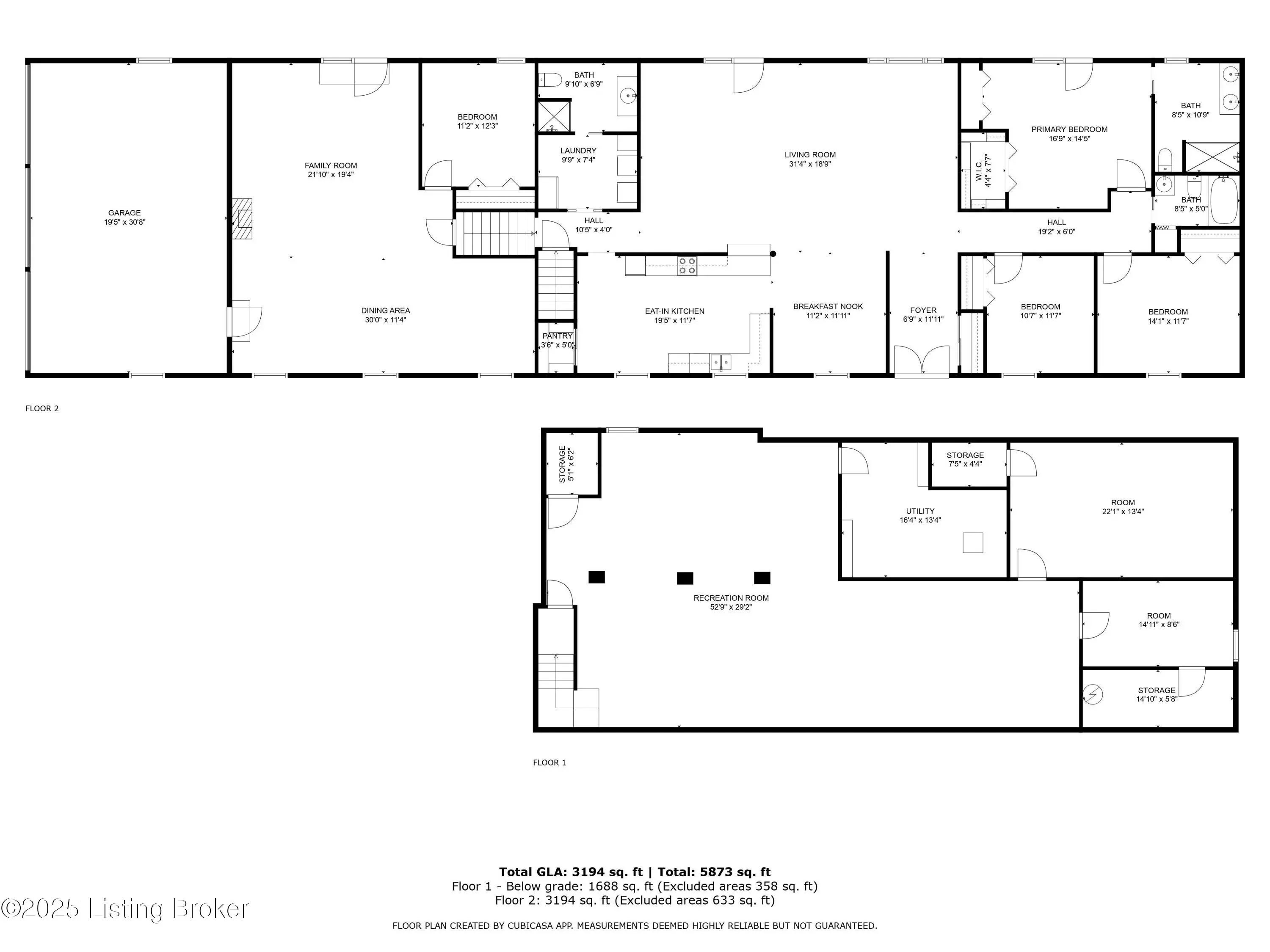
- Sq. Ft.4,882
- Acres1.74
- Built1982
4612 Glenarm Rd, Crestwood
This spacious ranch-style home offers almost 3200 sq ft on the main level plus 1,688 sq ft of finished living space in the lower level. Nestled on a flat 1.77-acre lot, this property provides the perfect blend of comfort, versatility, and room to grow. Step inside to a welcoming foyer that opens to a large great room with access to the rear deck—ideal for indoor/outdoor living. The open floor plan on the main level features an eat-in kitchen, dining area, and a primary suite complete with walk-in closet and private bath. Two additional bedrooms and a full bath are located nearby. For added flexibility, the home includes an in-law suite with its own family room and bedroom. A full-sized laundry room rounds out the main level. The finished lower level expands your living options with a spacious family room and two additional rooms. With a total of 4 bedrooms, 3 full baths, and multiple living spaces, there's room here for everyone. Car enthusiasts or hobbyists will appreciate the attached 3-car garage, while the expansive lot offers plenty of space for outdoor enjoyment. This home is perfect for multi-generational living or anyone who craves both space and functionality in a beautiful setting. Home can also be purchased with adjoining home at 4610 Glenarm Rd-MLS #169560. Ideal for extended family living nearby.
Essential Information
- MLS® #1695598
- Price$565,000
- Bedrooms4
- Bathrooms3.00
- Full Baths3
- Square Footage4,882
- Acres1.74
- Year Built1982
- TypeResidential
- Sub-TypeSingle Family Residence
- StatusActive
Amenities
- UtilitiesElectricity Connected, Propane
- ParkingAttached, Entry Side
- # of Garages3
Exterior
- Lot DescriptionLevel
- RoofShingle
- ConstructionVinyl Siding
- FoundationPoured Concrete
Listing Details
- Listing OfficeRe/max Properties East
Community Information
- Address4612 Glenarm Rd
- Area20-Oldham County N171
- SubdivisionNONE
- CityCrestwood
- CountyOldham
- StateKY
- Zip Code40014
Interior
- HeatingMiniSplit/Ductless, Forced Air, Propane
- CoolingDuctless, Central Air
- # of Stories1
School Information
- DistrictOldham

The data relating to real estate for sale on this web site comes in part from the Internet Data Exchange Program of Metro Search Multiple Listing Service. Real estate listings held by IDX Brokerage firms other than RE/Max Properties East are marked with the IDX logo or the IDX thumbnail logo and detailed information about them includes the name of the listing IDX Brokers. Information Deemed Reliable but Not Guaranteed © 2025 Metro Search Multiple Listing Service. All rights reserved.





























































































