Hi There! Is this Your First Time?
Did you know if you Register you have access to free search tools including the ability to save listings and property searches? Did you know that you can bypass the search altogether and have listings sent directly to your email address? Check out our how-to page for more info.
- Price$155,000
- Beds3
- Baths1
- Sq. Ft.1,385
- Acres0.12
- Built1947
713 Creel Ave, Louisville
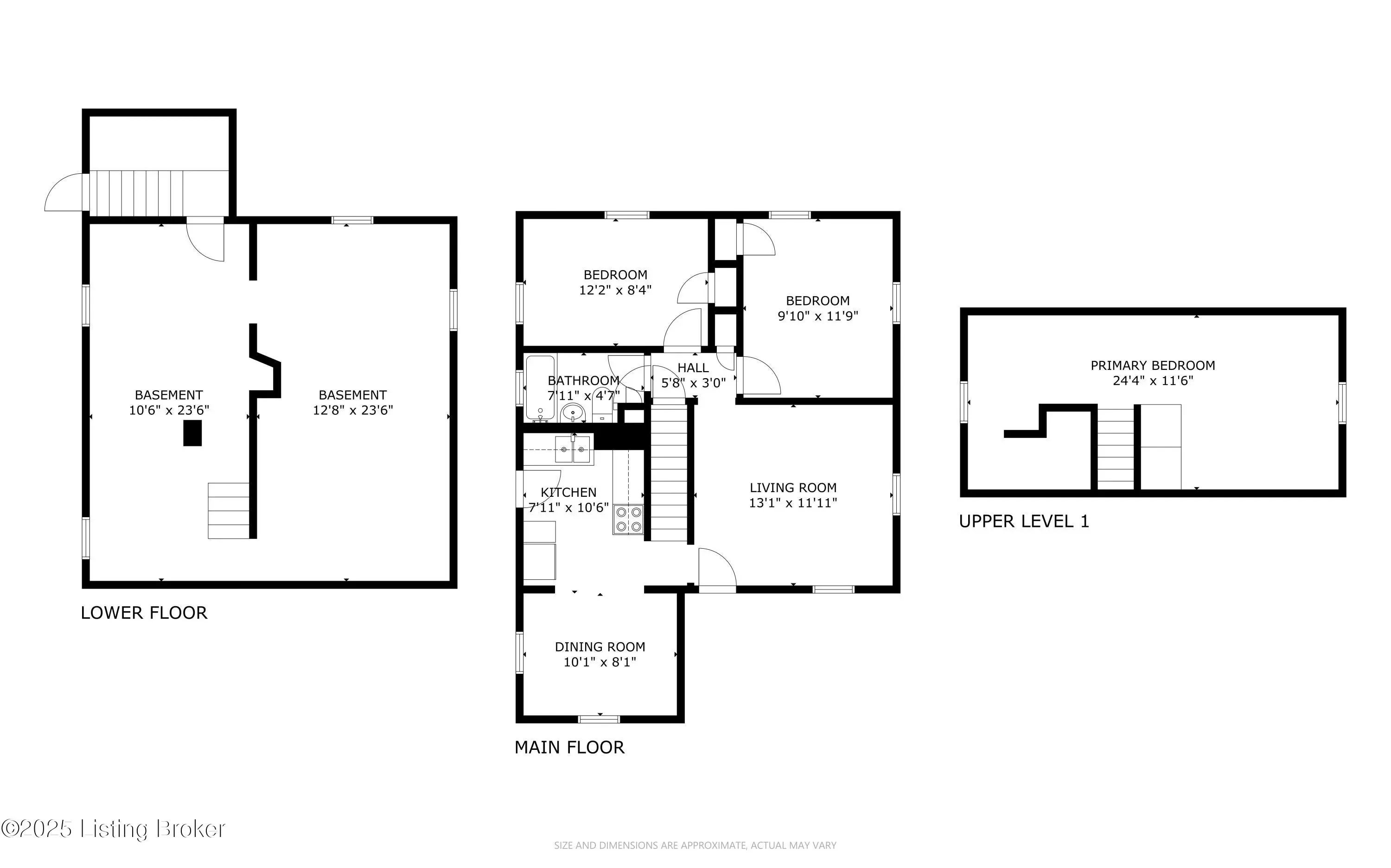
Step into ''The Creel Gable Cottage''. A charming 3-BR home offering a great blend of character & updates. The inviting living room features wood flooring, with a separate dining room that connects comfortably to the kitchen—complete w/granite countertops, stove, & refrigerator. A new HVAC system adds peace of mind. The half-story upper level provides a spacious double-sided room traditionally used as a bedroom (but non-conforming), also perfect for a private retreat, playroom, or flex space. The basement offers two distinct areas—one finished side ideal for additional living or recreation space, & the other reserved for utilities & generous storage. Outside, enjoy the long carport, fenced-in backyard, & room to relax. A wonderful opportunity to own a nice home with a functional layout.
Essential Information
- MLS® #1703967
- Price$155,000
- Bedrooms3
- Bathrooms1.00
- Full Baths1
- Square Footage1,385
- Acres0.12
- Year Built1947
- TypeResidential
- Sub-TypeSingle Family Residence
- StatusActive
Amenities
- UtilitiesElectricity Connected, Fuel:Natural
- ParkingEntry Side, Driveway
Exterior
- Lot DescriptionSidewalk, Cleared
- RoofShingle
- ConstructionVinyl Siding, Wood Frame
- FoundationPoured Concrete
Listing Details
- Listing OfficeRe/max Properties East
Community Information
- Address713 Creel Ave
- Area01-Dtwn Old Louisville/Shively/West Lou
- SubdivisionTHOMPSON PLACE
- CityLouisville
- CountyJefferson
- StateKY
- Zip Code40208
Interior
- HeatingForced Air, Natural Gas
- CoolingCentral Air
- # of Stories1
School Information
- DistrictJefferson

The data relating to real estate for sale on this web site comes in part from the Internet Data Exchange Program of Metro Search Multiple Listing Service. Real estate listings held by IDX Brokerage firms other than RE/Max Properties East are marked with the IDX logo or the IDX thumbnail logo and detailed information about them includes the name of the listing IDX Brokers. Information Deemed Reliable but Not Guaranteed © 2025 Metro Search Multiple Listing Service. All rights reserved.























































