Hi There! Is this Your First Time?
Did you know if you Register you have access to free search tools including the ability to save listings and property searches? Did you know that you can bypass the search altogether and have listings sent directly to your email address? Check out our how-to page for more info.
- Price$625,000
- Beds3
- Baths2
- Sq. Ft.2,069
- Acres6.02
- Built2013
9805 Independence School Rd, Louisville
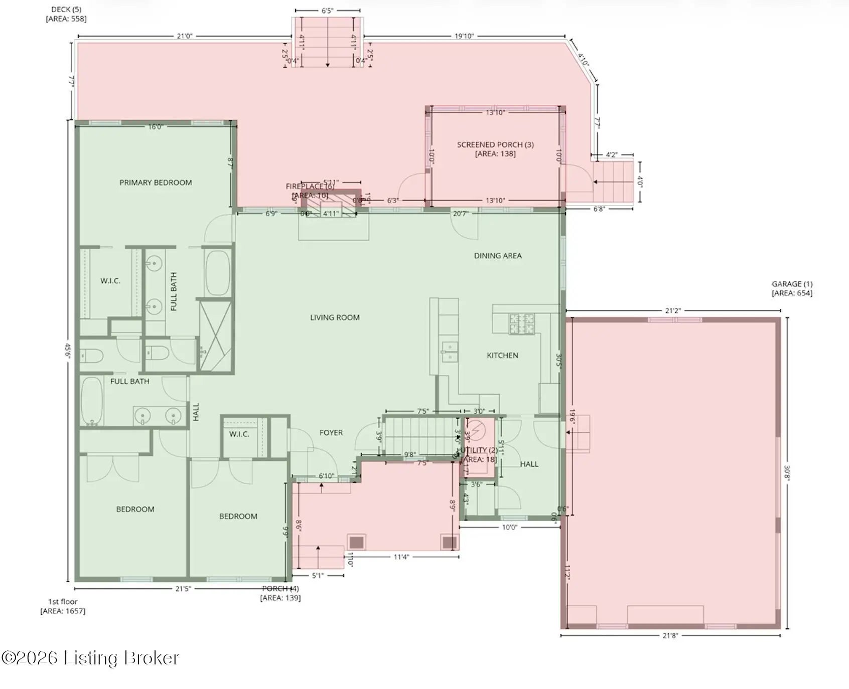
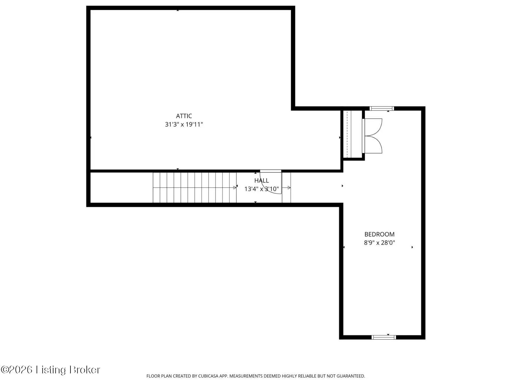
Beautifully situated on 6.02 acres with a peaceful pond, this traditional ranch home offers refined living with timeless appeal. The beautiful exterior provides classic curb appeal, while the expansive setting offers privacy and scenic views. Once you step inside the front door into the spacious foyer, you will feel the luxurious yet comfortable feel of the home. The large, inviting family room with stone fireplace with flanking windows has the wow factor you have been searching for in a home. The well-appointed kitchen is designed to impress, featuring new quartzite countertops, stainless steel appliances, and an abundance of cabinetry and countertop space—perfect for both everyday living and entertaining. In addition, the main level features a spacious primary bedroom with a private en suite bathroom, two additional bedrooms, and a full bath. Upstairs, a large flex space with a closet provides excellent versatility for a bonus room, home office, or additional living area. Outdoor living is exceptional with a screened porch and a large deck, ideal for relaxing or hosting guests while overlooking the serene acreage and pond. This property seamlessly combines classic style, thoughtful updates, and a beautiful natural setting.
Essential Information
- MLS® #1708401
- Price$625,000
- Bedrooms3
- Bathrooms2.00
- Full Baths2
- Square Footage2,069
- Acres6.02
- Year Built2013
- TypeResidential
- Sub-TypeSingle Family Residence
- StatusActive
Amenities
- UtilitiesElectricity Connected, Fuel:Natural
- ParkingAttached, Entry Side
- # of Garages2
Exterior
- Lot DescriptionPond on Lot, See Remarks, Cleared
- RoofShingle
- ConstructionCement Siding, Vinyl Siding, Stone Veneer
- FoundationCrawl Space
Listing Details
- Listing OfficeKeller Williams Collective
Community Information
- Address9805 Independence School Rd
- Area06-Buechel/Hghvw/okolona/FernCreek
- SubdivisionNONE
- CityLouisville
- CountyJefferson
- StateKY
- Zip Code40291
Interior
- HeatingForced Air, Natural Gas
- CoolingCentral Air
- FireplaceYes
- # of Fireplaces1
- # of Stories2
School Information
- DistrictJefferson

The data relating to real estate for sale on this web site comes in part from the Internet Data Exchange Program of Metro Search Multiple Listing Service. Real estate listings held by IDX Brokerage firms other than RE/Max Properties East are marked with the IDX logo or the IDX thumbnail logo and detailed information about them includes the name of the listing IDX Brokers. Information Deemed Reliable but Not Guaranteed © 2026 Metro Search Multiple Listing Service. All rights reserved.

































































































