Hi There! Is this Your First Time?
Did you know if you Register you have access to free search tools including the ability to save listings and property searches? Did you know that you can bypass the search altogether and have listings sent directly to your email address? Check out our how-to page for more info.
- Price$899,900
- Beds5
- Baths5
- Sq. Ft.3,843
- Acres0.31
- Built2024
5525 Ruby Falls Dr, Prospect
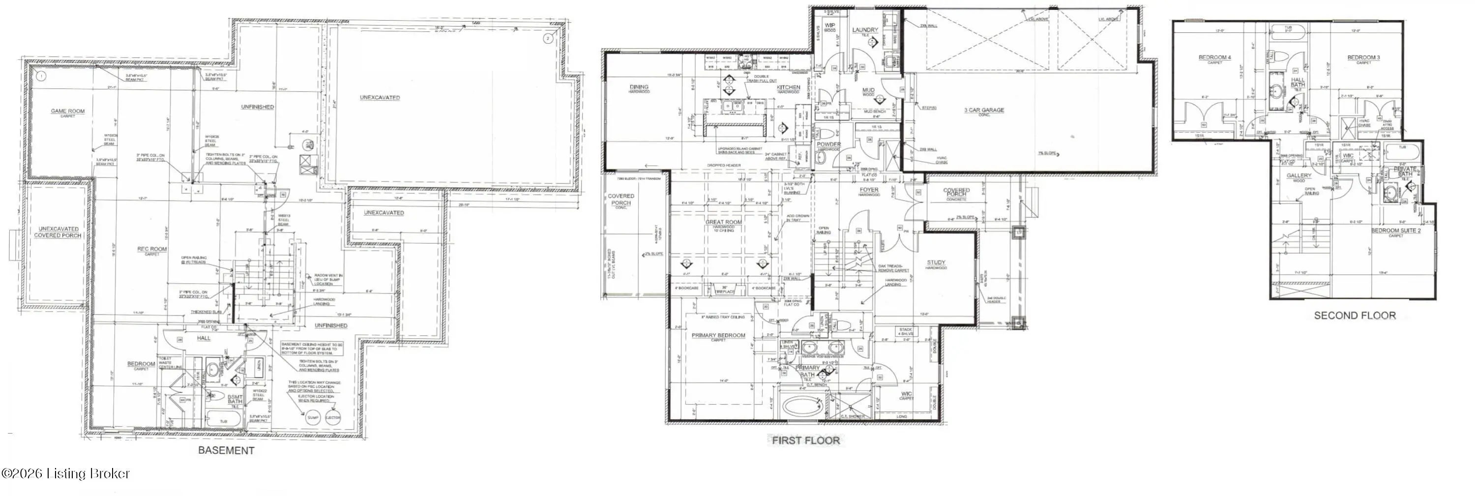
You'll fall in love with 5525 Ruby Falls, ideally situated in the highly sought-after SANCTUARY FALLS in Prospect, KY. This newly-built residence offers FIVE BEDROOMS AND FOUR-AND-A-HALF BATHS, thoughtfully designed to balance modern sophistication with timeless elegance. The high-end finishes and a well-conceived OPEN FLOOR PLAN create an inviting setting for both daily living and entertaining. The great room stands as a striking centerpiece, showcasing a FLOOR-TO-CEILING STONE FIREPLACE, a COFFERED CEILING, and CUSTOM BUILT BOOKCASES, all framed by expansive picture windows with remote controlled CUSTOM BLINDS that overlook the serene treelined backyard. The refined kitchen is both functional and stylish, equipped with PREMIUM APPLIANCES, SLEEK CABINETRY, and a SPACIOUS ISLAND that seamlessly connects to the dining and living areas. The finished lower level provides modern versatility, including a FIFTH BEDROOM, ADDITIONAL FULL BATH, and a LARGE GATHERING ROOM -- ideal for holidays, family fun nights and guests. The expansive COVERED PATIO and CUSTOM-BUILT DECK offer a private, tranquil outdoor sanctuary, ideal for both entertaining and quiet relaxation amid picturesque natural surroundings. Notable features include a THREE-CAR GARAGE, with CUSTOM FLOORING, an EXPANSIVE YARD well-suited for a pool or additional patio and landscaping, as well as thoughtful DESIGNER FINISHES throughout the residence. Convenient location and within the AWARD-WINNING OLDHAM COUNTY SCHOOL DISTRICT, this distinguished property presents a rare opportunity to enjoy luxury living, combined with convenience and an exceptional lifestyle.
Essential Information
- MLS® #1713916
- Price$899,900
- Bedrooms5
- Bathrooms5.00
- Full Baths4
- Half Baths1
- Square Footage3,843
- Acres0.31
- Year Built2024
- TypeResidential
- Sub-TypeSingle Family Residence
- StatusActive
Amenities
- UtilitiesElectricity Connected, Fuel:Natural
- ParkingAttached, Entry Side, Driveway
- # of Garages3
Exterior
- Lot DescriptionSidewalk, Level, Wooded
- RoofShingle
- ConstructionCement Siding, Brick, Stone
- FoundationPoured Concrete
Listing Details
- Listing OfficeKeller Williams Collective
Community Information
- Address5525 Ruby Falls Dr
- Area20-Oldham County N171
- SubdivisionSANCTUARY FALLS
- CityProspect
- CountyOldham
- StateKY
- Zip Code40059
Interior
- HeatingElectric, Forced Air, Natural Gas
- CoolingCentral Air
- # of Stories2
School Information
- DistrictOldham

The data relating to real estate for sale on this web site comes in part from the Internet Data Exchange Program of Metro Search Multiple Listing Service. Real estate listings held by IDX Brokerage firms other than RE/Max Properties East are marked with the IDX logo or the IDX thumbnail logo and detailed information about them includes the name of the listing IDX Brokers. Information Deemed Reliable but Not Guaranteed © 2026 Metro Search Multiple Listing Service. All rights reserved.

























































































































