Hi There! Is this Your First Time?
Did you know if you Register you have access to free search tools including the ability to save listings and property searches? Did you know that you can bypass the search altogether and have listings sent directly to your email address? Check out our how-to page for more info.
- Price$200,000
- Acres5.02
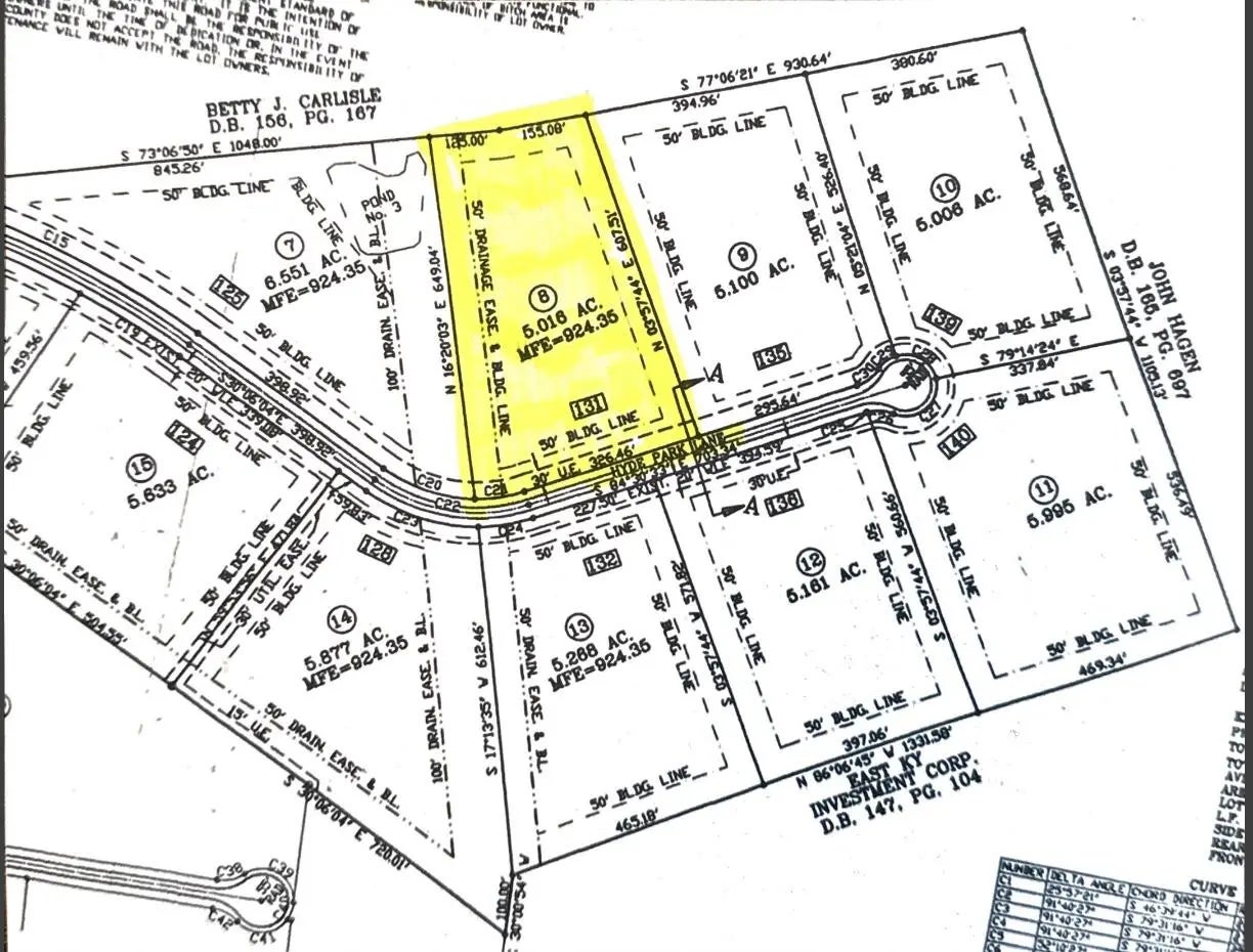
131 Hyde Park Lane, Georgetown
This 5 acres is ready to build your dream home. The successful buyer will need to get their house plans approved by the Kentucky Airport Zoning Board in Frankfort for the height restrictions. Purchasers are required to check to find out if it is permissible to build to height specifications of your plans. The lot is near the Scott County Airport and there are access restrictions. The Kentucky Airport Zoning Board is 502-782-4043 There is no HOA and attached are the Hyde Park Subdivision Protective Covenants.
Essential Information
- MLS® #25017188
- Price$200,000
- Acres5.02
- TypeLand
- Sub-TypeUnimproved Land
- StatusActive
Amenities
- UtilitiesElectricity Available, Water Available
Additional Information
- Date ListedAugust 5th, 2025
- ZoningAR,Other
Community Information
- Address131 Hyde Park Lane
- Area005 - Scott County
- SubdivisionHyde Park
- CityGeorgetown
- CountyScott
- StateKY
- Zip Code40324
Exterior
- Lot DescriptionCleared, Level, Rolling Slope, Gentle Sloping
Listing Details
- Listing OfficeColdwell Banker Mcmahan





















