Hi There! Is this Your First Time?
Did you know if you Register you have access to free search tools including the ability to save listings and property searches? Did you know that you can bypass the search altogether and have listings sent directly to your email address? Check out our how-to page for more info.
- Price$199,900
- Beds1
- Baths1
- Sq. Ft.515
- Acres9.02
- Built2005
6940 State Hwy 229, Barbourville
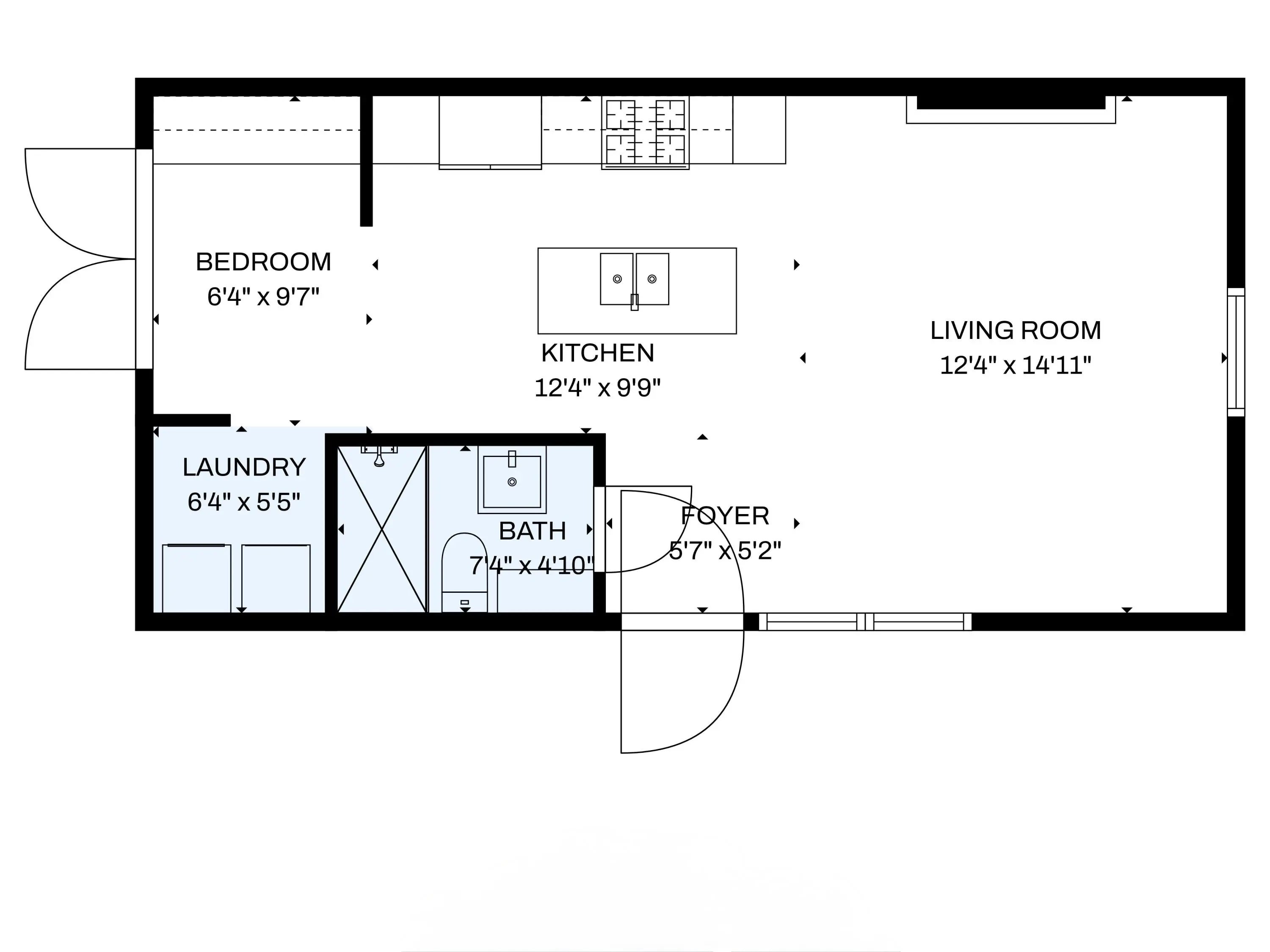
Tucked behind a private gate and set against the hillside on 9.02 surveyed acres, this fully reimagined modern cabin retreat delivers luxury tiny living without sacrificing comfort, style, or convenience. If you've been waiting for something different, something intentional, something unforgettable, this is it. Completely gutted and rebuilt, this 515 sq ft custom home was designed to live big. The open concept layout flows effortlessly, anchored by a stunning custom kitchen featuring a gas range, modern cabinetry, and a functional island that doubles as a backup propane heating source. Every detail was thought through. From the hardwood floors throughout to the tile bath, this home feels like a boutique hotel suite tucked into the woods. The queen-size Murphy bed transforms the living space in seconds, allowing you to maximize every square foot. A full-size washer and dryer are thoughtfully positioned for true everyday livability. The living area is finished with a wall-mounted TV setup and LED accent lighting surrounding the mantle for a sleek, modern feel. Ceiling fans and a split unit provide efficient heating and cooling year-round, while the owned propane tank offers peace of mind in colder months. The bathroom is next-level for a home this size, complete with a stand-up shower, smart toilet, and smart mirror. It is modern, clean, and elevated. Outside, the charm continues. Board and batten siding paired with metal accents and a metal roof give this home a refined cabin-top aesthetic. A wraparound deck invites you to sit, breathe, and listen to nothing but the woods. When it rains, a natural runoff creates a waterfall effect along the small cliffs and caves scattered across the property. It is peaceful. It is private. It feels like your own hidden retreat. The land itself offers opportunity. There is a small trail system already in place and an additional cleared area where a manufactured home once sat, giving potential for expansion or another dwelling. A nice storage building adds extra functionality. The concrete driveway provides ample parking for multiple vehicles, boats, or side-by-sides. Located just 20 minutes to Corbin and approximately 15 minutes to both London and Barbourville, you get seclusion without isolation. Hospitals, shopping, restaurants, and everyday necessities are all within easy reach. Electric, city water, and septic are already in place. This property is ideal for the minimalist who refuses to compromise on style, the hunter or nature lover seeking a private basecamp, or anyone looking for a modern getaway with room to explore. Opportunities like this rarely come to market. It is not just a tiny house. It is a lifestyle shift. Schedule your private showing and experience it in person.
Essential Information
- MLS® #26003053
- Price$199,900
- Bedrooms1
- Bathrooms1.00
- Full Baths1
- Square Footage515
- Acres9.02
- Year Built2005
- TypeResidential
- Sub-TypeSingle Family Residence
- StyleCabin
- StatusActive
Amenities
- UtilitiesElectricity Connected, Water Connected, Propane
- ParkingDriveway
- ViewRural, Trees/Woods, Mountain(s)
Exterior
- Lot DescriptionWooded
- WindowsBlinds, Screens
- RoofMetal
- ConstructionWood Siding, Metal Siding
- FoundationPillar/Post/Pier
Additional Information
- Date ListedFebruary 20th, 2026
Community Information
- Address6940 State Hwy 229
- Area067 - Knox County
- SubdivisionRural
- CityBarbourville
- CountyKnox
- StateKY
- Zip Code40906
Interior
- Interior FeaturesCeiling Fan(s)
- AppliancesDryer, Gas Range, Washer
- HeatingElectric, Heat Pump, Propane, Space Heater, Propane Tank Owned
- CoolingCeiling Fan(s), Electric, Heat Pump
- StoriesOne
School Information
- DistrictKnox County - 67
- ElementaryFlat Lick
- MiddleKnox
- HighKnox Central
Listing Details
- Listing OfficeKeller Williams Legacy Group

























































































